Классы компонентов: 1.2.1. Электротехнические шины
Опубликованные здесь схемы взяты из трех инструкций:
- ВСН 164-82 Инструкция по проектированию и монтажу контактных соединений шин между собой и с выводами электротехнических устройств. (стр.5)
- ВСН 116-65 Технические указания по технологии производства строительных и монтажных работ при электрификации железных дорог (устройства энергоснабжения). (стр.141)
При этом соединение шин во второй и третей инструкциях в большинстве случаев одинаковые и поэтому схемы объедены как по инструкции №2.
Какую схему соединения выбрать? Решать самим пользователям. Нам больше нравится вторая инструкция - надёжней как-то.
Схемы болтовых соединений шин
|
|
▼ 1. Разборное соединение шин шириной 120 мм (Ш1 и Ш2). (вверх)
| Схема по инструкции 1 (размер крепежа М16) | Схема по инструкции 2 (размер крепежа М16) | ||
|---|---|---|---|
| Ответвление | Соединение | Ответвление | Соединение |
![]() |
![]() |
![]() |
![]() |
▼ 2. Разборное соединение шин шириной 120 мм (Ш1) и 100 мм (Ш2). (вверх)
| Схема по инструкции 1 (размер крепежа М16) | Схема по инструкции 2 (размер крепежа М16) | ||
|---|---|---|---|
| Ответвление | Соединение | Ответвление | Соединение |
![]() |
![]() |
![]() |
![]() |
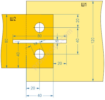
▼ 3. Разборное соединение шин шириной 120 мм (Ш1) и 80 мм (Ш2). (вверх)
| Схема по инструкции 1 (размер крепежа М12) | Схема по инструкции 2 (размер крепежа М16) | ||
|---|---|---|---|
| Ответвление | Соединение | Ответвление | Соединение |
![]() |
![]() |
![]() |
![]() |
▼ 4. Разборное соединение шин шириной 120 мм (Ш1) и 60 мм (Ш2). (вверх)
| Схема по инструкции 1 (размер крепежа М10) | Схема по инструкции 2 (размер крепежа М12) | ||
|---|---|---|---|
| Ответвление | Соединение | Ответвление | Соединение |
![]() |
![]() |
![]() |
![]() |
▼ 5. Разборное соединение шин шириной 120 мм (Ш1) и 50 мм (Ш2). (вверх)
| Схема по инструкции 1 (размер крепежа М16) | Схема по инструкции 2 (размер крепежа М12) | ||
|---|---|---|---|
| Ответвление | Соединение | Ответвление | Соединение |
![]() |
![]() |
![]() |
![]() |
▼ 6. Разборное соединение шин шириной 120 мм (Ш1) и 40 мм (Ш2). (вверх)
| Схема по инструкции 1 (размер крепежа М12) | Схема по инструкции 2 (размер крепежа М12) | ||
|---|---|---|---|
| Ответвление | Соединение | Ответвление | Соединение |
![]() |
![]() |
![]() |
![]() |
▼ 7. Разборное соединение шин шириной 120 мм (Ш1) и 30 мм (Ш2). (вверх)
| Схема по инструкции 1 (размер крепежа М10) | Схема по инструкции 2 (размер крепежа М12) | ||
|---|---|---|---|
| Ответвление | Соединение | Ответвление | Соединение |
![]() |
![]() |
![]() |
![]() |
▼ 8. Разборное соединение шин шириной 120 мм (Ш1) и 20 мм (Ш2). (вверх)
| Схема по инструкции 1 (размер крепежа М8) | Схема по инструкции 2 (размер крепежа М10) | ||
|---|---|---|---|
| Ответвление | Соединение | Ответвление | Соединение |
![]() |
![]() |
![]() |
![]() |
▼ 9. Разборное соединение шин шириной 120 мм (Ш1) и 15 мм (Ш2). (вверх)
| Схема по инструкции 1 (размер крепежа М6) | Схема по инструкции 2 (размер крепежа М6) | ||
|---|---|---|---|
| Ответвление | Соединение | Ответвление | Соединение |
![]() |
![]() |
![]() |
![]() |
▼ 10. Разборное соединение шин шириной 100 мм (Ш1 и Ш2). (вверх)
| Схема по инструкции 1 (размер крепежа М16) | Схема по инструкции 2 (размер крепежа М16) | ||
|---|---|---|---|
| Ответвление | Соединение | Ответвление | Соединение |
![]() |
![]() |
![]() |
![]() |
▼ 11. Разборное соединение шин шириной 100 мм (Ш1) и 80 мм (Ш2). (вверх)
| Схема по инструкции 1 (размер крепежа М12) | Схема по инструкции 2 (размер крепежа М16) | ||
|---|---|---|---|
| Ответвление | Соединение | Ответвление | Соединение |
![]() |
![]() |
![]() |
![]() |
▼ 12. Разборное соединение шин шириной 100 мм (Ш1) и 60 мм (Ш2). (вверх)
| Схема по инструкции 1 (размер крепежа М6) | Схема по инструкции 2 (размер крепежа М12) | ||
|---|---|---|---|
| Ответвление | Соединение | Ответвление | Соединение |
![]() |
![]() |
![]() |
![]() |
▼ 13. Разборное соединение шин шириной 100 мм (Ш1) и 50 мм (Ш2). (вверх)
| Схема по инструкции 1 (размер крепежа М16) | Схема по инструкции 2 (размер крепежа М12) | ||
|---|---|---|---|
| Ответвление | Соединение | Ответвление | Соединение |
![]() |
![]() |
![]() |
![]() |
▼ 14. Разборное соединение шин шириной 100 мм (Ш1) и 40 мм (Ш2). (вверх)
| Схема по инструкции 1 (размер крепежа М12) | Схема по инструкции 2 (размер крепежа М12) | ||
|---|---|---|---|
| Ответвление | Соединение | Ответвление | Соединение |
![]() |
![]() |
![]() |
![]() |
▼ 15. Разборное соединение шин шириной 100 мм (Ш1) и 30 мм (Ш2). (вверх)
| Схема по инструкции 1 (размер крепежа М10) | Схема по инструкции 2 (размер крепежа М12) | ||
|---|---|---|---|
| Ответвление | Соединение | Ответвление | Соединение |
![]() |
![]() |
![]() |
![]() |
▼ 16. Разборное соединение шин шириной 100 мм (Ш1) и 20 мм (Ш2). (вверх)
| Схема по инструкции 1 (размер крепежа М8) | Схема по инструкции 2 (размер крепежа М10) | ||
|---|---|---|---|
| Ответвление | Соединение | Ответвление | Соединение |
![]() |
![]() |
![]() |
![]() |
▼ 17. Разборное соединение шин шириной 100 мм (Ш1) и 15 мм (Ш2). (вверх)
| Схема по инструкции 1 (размер крепежа М6) | Схема по инструкции 2 (размер крепежа М6) | ||
|---|---|---|---|
| Ответвление | Соединение | Ответвление | Соединение |
![]() |
![]() |
![]() |
![]() |
▼ 18. Разборное соединение шин шириной 80 мм (Ш1 и Ш2). (вверх)
| Схема по инструкции 1 (размер крепежа М12) | Схема по инструкции 2 (размер крепежа М16) | ||
|---|---|---|---|
| Ответвление | Соединение | Ответвление | Соединение |
![]() |
![]() |
![]() |
![]() |
▼ 19. Разборное соединение шин шириной 80 мм (Ш1) и 60 мм (Ш2). (вверх)
| Схема по инструкции 1 (размер крепежа М10) | Схема по инструкции 2 (размер крепежа М12) | ||
|---|---|---|---|
| Ответвление | Соединение | Ответвление | Соединение |
![]() |
![]() |
![]() |
![]() |
▼ 20. Разборное соединение шин шириной 80 мм (Ш1) и 50 мм (Ш2). (вверх)
| Схема по инструкции 1 (размер крепежа М16) | Схема по инструкции 2 (размер крепежа М12) | ||
|---|---|---|---|
| Ответвление | Соединение | Ответвление | Соединение |
![]() |
![]() |
![]() |
![]() |
▼ 21. Разборное соединение шин шириной 80 мм (Ш1) и 40 мм (Ш2). (вверх)
| Схема по инструкции 1 (размер крепежа М12) | Схема по инструкции 2 (размер крепежа М6) | ||
|---|---|---|---|
| Ответвление | Соединение | Ответвление | Соединение |
![]() |
![]() |
![]() |
![]() |
▼ 22. Разборное соединение шин шириной 80 мм (Ш1) и 30 мм (Ш2). (вверх)
| Схема по инструкции 1 (размер крепежа М10) | Схема по инструкции 2 (размер крепежа М12) | ||
|---|---|---|---|
| Ответвление | Соединение | Ответвление | Соединение |
![]() |
![]() |
![]() |
![]() |
▼ 23. Разборное соединение шин шириной 80 мм (Ш1) и 20 мм (Ш2). (вверх)
| Схема по инструкции 1 (размер крепежа М8) | Схема по инструкции 2 (размер крепежа М10) | ||
|---|---|---|---|
| Ответвление | Соединение | Ответвление | Соединение |
![]() |
![]() |
![]() |
![]() |
▼ 24. Разборное соединение шин шириной 80 мм (Ш1) и 15 мм (Ш2). (вверх)
| Схема по инструкции 1 (размер крепежа М6) | Схема по инструкции 2 (размер крепежа М6) | ||
|---|---|---|---|
| Ответвление | Соединение | Ответвление | Соединение |
![]() |
![]() |
![]() |
![]() |
▼ 25. Разборное соединение шин шириной 60 мм (Ш1 и Ш2). (вверх)
| Схема по инструкции 1 (размер крепежа М10) | Схема по инструкции 2 (размер крепежа М12) | ||
|---|---|---|---|
| Ответвление | Соединение | Ответвление | Соединение |
![]() |
![]() |
![]() |
![]() |
▼ 26. Разборное соединение шин шириной 60 мм (Ш1) и 50 мм (Ш2). (вверх)
| Схема по инструкции 1 (размер крепежа М16) | Схема по инструкции 2 (размер крепежа М12) | ||
|---|---|---|---|
| Ответвление | Соединение | Ответвление | Соединение |
![]() |
![]() |
![]() |
![]() |
▼ 27. Разборное соединение шин шириной 60 мм (Ш1) и 40 мм (Ш2). (вверх)
| Схема по инструкции 1 (размер крепежа М12) | Схема по инструкции 2 (размер крепежа М12) | ||
|---|---|---|---|
| Ответвление | Соединение | Ответвление | Соединение |
![]() |
![]() |
![]() |
![]() |
▼ 28. Разборное соединение шин шириной 60 мм (Ш1) и 30 мм (Ш2). (вверх)
| Схема по инструкции 1 (размер крепежа М10) | Схема по инструкции 2 (размер крепежа М12) | ||
|---|---|---|---|
| Ответвление | Соединение | Ответвление | Соединение |
![]() |
![]() |
![]() |
![]() |
▼ 29. Разборное соединение шин шириной 60 мм (Ш1) и 20 мм (Ш2). (вверх)
| Схема по инструкции 1 (размер крепежа М8) | Схема по инструкции 2 (размер крепежа М10) | ||
|---|---|---|---|
| Ответвление | Соединение | Ответвление | Соединение |
![]() |
![]() |
![]() |
![]() |
▼ 30. Разборное соединение шин шириной 60 мм (Ш1) и 15 мм (Ш2). (вверх)
| Схема по инструкции 1 (размер крепежа М6) | Схема по инструкции 2 (размер крепежа М6) | ||
|---|---|---|---|
| Ответвление | Соединение | Ответвление | Соединение |
![]() |
![]() |
![]() |
![]() |
▼ 31. Разборное соединение шин шириной 50 мм (Ш1 и Ш2). (вверх)
| Схема по инструкции 1 (размер крепежа М16) | Схема по инструкции 2 (размер крепежа М12) | ||
|---|---|---|---|
| Ответвление | Соединение | Ответвление | Соединение |
![]() |
![]() |
![]() |
![]() |
▼ 32. Разборное соединение шин шириной 50 мм (Ш1) и 40 мм (Ш2). (вверх)
| Схема по инструкции 1 (размер крепежа М12) | Схема по инструкции 2 (размер крепежа м10) | ||
|---|---|---|---|
| Ответвление | Соединение | Ответвление | Соединение |
![]() |
![]() |
![]() |
![]() |
▼ 33. Разборное соединение шин шириной 50 мм (Ш1) и 30 мм (Ш2). (вверх)
| Схема по инструкции 1 (размер крепежа М10) | Схема по инструкции 2 (размер крепежа М10) | ||
|---|---|---|---|
| Ответвление | Соединение | Ответвление | Соединение |
![]() |
![]() |
![]() |
![]() |
▼ 34. Разборное соединение шин шириной 50 мм (Ш1) и 20 мм (Ш2). (вверх)
| Схема по инструкции 1 (размер крепежа М8) | Схема по инструкции 2 (размер крепежа М10) | ||
|---|---|---|---|
| Ответвление | Соединение | Ответвление | Соединение |
![]() |
![]() |
![]() |
![]() |
▼ 35. Разборное соединение шин шириной 50 мм (Ш1) и 15 мм (Ш2). (вверх)
| Схема по инструкции 1 (размер крепежа М6) | Схема по инструкции 2 (размер крепежа М6) | ||
|---|---|---|---|
| Ответвление | Соединение | Ответвление | Соединение |
![]() |
![]() |
![]() |
![]() |
▼ 36. Разборное соединение шин шириной 40 мм (Ш1 и Ш2). (вверх)
| Схема по инструкции 1 (размер крепежа М12) | Схема по инструкции 2 (размер крепежа ответв. М10 / соед.М12) | ||
|---|---|---|---|
| Ответвление | Соединение | Ответвление | Соединение |
![]() |
![]() |
![]() |
![]() |
▼ 37. Разборное соединение шин шириной 40 мм (Ш1) и 30 мм (Ш2). (вверх)
| Схема по инструкции 1 (размер крепежа М10) | Схема по инструкции 2 (размер крепежа М12) | ||
|---|---|---|---|
| Ответвление | Соединение | Ответвление | Соединение |
![]() |
![]() |
![]() |
![]() |
▼ 38. Разборное соединение шин шириной 40 мм (Ш1) и 20 мм (Ш2). (вверх)
| Схема по инструкции 1 (размер крепежа М8) | Схема по инструкции 2 (размер крепежа М6) | ||
|---|---|---|---|
| Ответвление | Соединение | Ответвление | Соединение |
![]() |
![]() |
![]() |
![]() |
▼ 39. Разборное соединение шин шириной 40 мм (Ш1) и 15 мм (Ш2). (вверх)
| Схема по инструкции 1 (размер крепежа М6) | Схема по инструкции 2 (размер крепежа М6) | ||
|---|---|---|---|
| Ответвление | Соединение | Ответвление | Соединение |
![]() |
![]() |
![]() |
![]() |
▼ 40. Разборное соединение шин шириной 30 мм (Ш1 и Ш2). (вверх)
| Схема по инструкции 1 (размер крепежа М10) | |
|---|---|
| Ответвление | Соединение |
![]() |
![]() |
▼ 41. Разборное соединение шин шириной 30 мм (Ш1) и 20 мм (Ш2). (вверх)
| Схема по инструкции 1 (размер крепежа М8) | |
|---|---|
| Ответвление | Соединение |
![]() |
![]() |
▼ 42. Разборное соединение шин шириной 30 мм (Ш1) и 15 мм (Ш2). (вверх)
| Схема по инструкции 1 (размер крепежа М6) | |
|---|---|
| Ответвление | Соединение |
![]() |
![]() |
▼ 43. Разборное соединение шин шириной 20 мм (Ш1 и Ш2). (вверх)
| Схема по инструкции 1 (размер крепежа М8) | |
|---|---|
| Ответвление | Соединение |
![]() |
![]() |
▼ 44. Разборное соединение шин шириной 20 мм (Ш1) и 15 мм (Ш2). (вверх)
| Схема по инструкции 1 (размер крепежа М6) | |
|---|---|
| Ответвление | Соединение |
![]() |
![]() |
▼ 45. Разборное соединение шин шириной 15 мм (Ш1 и Ш2). (вверх)
| Схема по инструкции 1 (размер крепежа М6) | |
|---|---|
| Ответвление | Соединение |
![]() |
![]() |
В сравнении






































































































































































